
Video 360°
Con i nostri Video 360 sarà possibile fare una visita della casa prima della visita vera e propria!
GUARDA IL VIDEO 360APPARTAMENTO - VIA CESARE LOMBROSO
In posizione assolutamente strategica, nel quadrante di Roma nord, nel GRA all'interno del quartiere Trionfale, ti proponiamo un appartamento da ristrutturare. La palazzina si trova a poca distanza da ospedali, centri d'interesse quali scuole, supermercati, negozi e vicino all'accesso ai mezzi di trasporto pubblici; Il fabbricato è posto su un declivio, per cui la posizione garantirà una quiete assoluta, vantaggio non indifferente in questa zona!
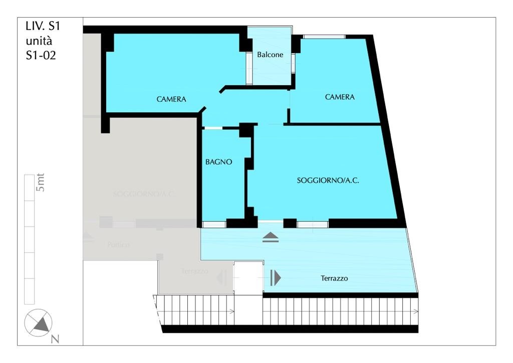
L’appartamento è composto da ingresso, soggiorno a vista, camera, cucina, bagno e comodo terrazzo con ripostiglio, cantina e posto auto incluso.
La casa è da ristrutturare e questo rende possibile redistribuire gli spazi realizzando un comodo trilocale; In allegato all’annuncio troverai delle ipotesi di realizzo.
MQ. 60
LETTI 2
BAGNI 1
RICHIESTA: 90.000€
CLICCA QUI PIU' INFORMAZIONI
Chiama per fissare un appuntamento:
Francesca Ippolito
333 4397516

QUANTO VALE IL TUO IMMOBILE?
Se vuoi ricevere una valutazione professionale del tuo immobile, clicca qui: